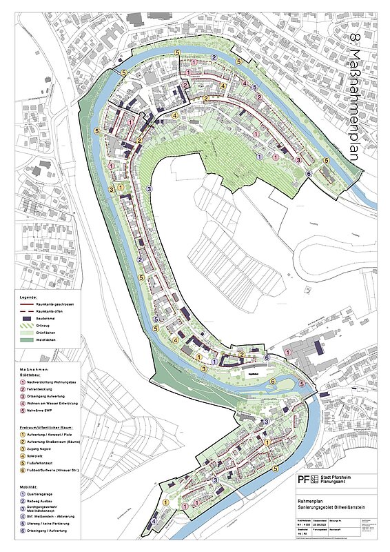
Ziele und Maßnahmen für das Sanierungsgebiet Dillweißenstein

Die Ziele und Maßnahmen leiten sich aus definierten Handlungsfeldern ab. Grundlage für die Umsetzung der Sanierungsziele ist ein sogenanntes Integriertes Entwicklungskonzept (IEK). Alle geplanten und noch zu entwickelnden Maßnahmen entsehen in einem Prozess und können dabei immer wieder auch Veränderungen unterliegen.
Neben der Verbesserung und bedarfsgerechten Anpassung des Wohnungsbestandes und der Mobilisierung von Wohnflächen im Bestand, wird das Augenmerk vor allem auf die Aufwertung des Wohnumfeldes gerichet werden. Die Stadt Pforzheim will Lebensraum mit mehr Urbanität zurückgewinnen – selbstverständlich unter Berücksichtigung der aktuellen Klima- und Naturschutzerfordernissen. Zudem soll der Bezug Dillweißensteins zur Nagoldaue als Naherholungsraum, das soziale Miteinander und die Identität des Stadtteils gestärkt werden.
Überblick: Defizite & Bedarfe sowie Ziele & Maßnahmen
Handlungsfeld: Bebauungs- und Nutzungsstruktur
| Defizite & Bedarfe | Ziele & Maßnahmen |
|---|---|
|
|
|
|
|
|
|
|
|
|
Handlungsfeld: Wohnen und Wohnumfeld
| Defizite & Bedarfe | Ziele & Maßnahmen |
|---|---|
|
|
|
|
|
|
Handlungsfeld: Öffentlicher Raum
| Defizite & Bedarfe | Ziele & Maßnahmen |
|---|---|
|
|
|
|
|
|
|
|
|
|
Handlungsfeld: Mobilität und Verkehr
| Defizite & Bedarfe | Ziele & Maßnahmen |
|---|---|
|
|
|
|
|
|
|
|
|
|
Handlungsfeld: Soziales
| Defizite & Bedarfe | Ziele & Maßnahmen |
|---|---|
|
|
|
|
Handlungsfeld: Einzelhandel
| Defizite & Bedarfe | Ziele & Maßnahmen |
|---|---|
|
|
Sanierungsziele | Planerischer Kontext
Umsetzung der Förderschwerpunkte des Förderprogramms von Bund und Land
- Schaffung von Wohnraum durch Umnutzung, Modernisierung und Aktivierung von Flächen und leerstehenden Immobilien.
- Aufwertung des öffentlichen Raums
- Sicherung und Erhalt denkmalpflegerisch wertvoller Bausubstanz sowie stadt- und ortsbildprägender Gebäude, baustilgerechte Sanierung der Nachkriegsarchitektur
- Maßnahmen zur Anpassung an den Klimawandel und zur ökologischen Erneuerung, unter anderem in den Handlungsfeldern Optimierung der Energieeffizienz im Altbaubestand, Verbesserung des Stadtklimas, Reduzierung von Lärm und Abgasen, Aktivierung der Naturkreisläufe, Verbesserung der grünen und blauen Infrastruktur des Wohnumfeldes durch Schaffung und Erhalt sowie Qualifizierung von multifunktionalen Grün- und Freiräumen
- Neustrukturierung und Umnutzung leerstehender, fehl- oder mindergenutzter Flächen und baulich vorgenutzter Brachflächen anderer Nutzungen
- Maßnahmen zur Anpassung vorhandener Strukturen an den demografischen Wandel, zum Beispiel Barrierefreiheit und Umbau von Wohnungen
- Sicherung und Verbesserung des gesellschaftlichen Zusammenhalts und der Integration in den Quartieren
- Aufwertung des öffentlichen Raumes und des Wohnumfeldes durch Schaffung und Erhalt sowie Qualifizierung von multifunktionalen Grün- und Freiräumen.
Stadtbild | Historische Ortsbildanalyse
Ziel von historischen Ortsanalysen ist es, die denkmalbedeutsamen Qualitäten von Bausubstanz und Ortsstruktur zu analysieren und kartographisch darzustellen sowie anwenderfreundlich aufzuarbeiten.
Für das Sanierungsgebiet Dillweißenstein wurde zur Vorbereitung der Stadterneuerung eine historische Ortsbildanalyse erstellt. Diese veranschaulicht die Geschichte der Siedlung und macht auf ihre schützenswerten Bauten und Räume aufmerksam. Sie ist daher ein wichtiger Bestandteil der Sanierungsplanungen.
In der historischen Ortsanalyse wurden folgende Themen unter besonderer Schwerpunktsetzung auf bau- bzw. ortsbaugeschichtliche und denkmalpflegerische Fragestellungen dargestellt:
- Topografie und Naturraum
- Siedlungsgeschichte
- Historische Ortsstruktur
- Historische Bauten und Räume
- Objektlise
- Fotodokumentation der im denkmalpflegerischen Werteplan aufgenommenen Objekte mit Datenblättern
Im Rahmen der anstehenden baulichen und städtebaulichen Maßnahmen im öffentlichen, wie auch im privaten Bereich wird eine enge Zusammenarbeit mit der Unteren Denkmalschutzbehörde und dem Landesamt für Denkmalpflege erfolgen, um die vorhandenen Qualitäten weiter herauszuarbeiten.
Integriertes Städtebauliches Entwicklungskonzept (IEK)
Im Rahmen eines Sanierungsgebiets Dillweißenstein sind vielfältige Projekte und Maßnahmen anzugehen. In Zusammenfassung der bisherigen Gesprächsrunden können folgende Impulshandlungsfelder benannt werden:
Soziale Impulse
- Aktivierung und Förderung der Potenziale im Quartier
- Erhalt stabiler Bevölkerungsstrukturen
- Erhalt und Schaffung bedarfsgerechter und bezahlbarer Wohnangebote
- Stärkung der Selbstverantwortung
- Ausweitung und Verbesserung der Angebotspalette für bedürftige Bevölkerungsgruppen etc.
Ökonomische Impulse
- Sicherung der Einzelhandelslandschaft
- Beschäftigung und Qualifizierung
- Stabilisierung und Gründung lokaler Unternehmen etc.
Kulturelle Impulse
- Weiterentwicklung der Quartiersidentität
- Stadtteilfeste unterstützen
- Stärkung des nachbarschaftlichen Zusammenlebens im Gebiet
- Einrichtung von Orten der Begegnung etc.
Ökologische Impulse
- Verbesserung der Energiebilanz des Stadtteils
- Verkehrsreduzierung
- Lärmschutz
- Entsiegelung
- Begrünung
- Klimafolgenanpassung etc.
Baulich-städtebauliche Impulse
- Bewohnerorientierte Modernisierung
- Berücksichtigung des demografischen Wandels
- Aktivierung von Flächen für den Wohnungsbau
- Neuordnung von Brachen
Partizipatorische Impulse
- Stärkung der Vernetzungsstrukturen vor Ort
- Runde Tische
- Selbst-/Nachbarschaftshilfe etc.
Politisch-administrative Impulse
- Gebietsorientierter Einsatz verschiedener Fachpolitiken
- Bündelung investiver und nichtinvestiver Maßnahmen
- Einrichtung eines Verfügungsfonds
- Einrichtung eines Quartiersmanagements
Im Einklang mit städtischen Entwicklungskonzepten
Die vorgeschlagenen Maßnahmen und Ziele der Stadterneuerung zur Behebung der Missstände stehen in Einklang mit den städtischen Entwicklungskonzepten: Städtebaulichräumliches Leitbild, Masterplan, Klimaschutzkonzept, Klimawandelanpassungsstrategie etc. In gewissem Sinne ist eine Stadterneuerungsmaßnahme in Dillweißenstein die logische Fortführung und Umsetzung dieser Konzepte.
Städtebaulich-räumliches Leitbild Pforzheim 2050
Im städtebaulich-räumlichen Leitbild Pforzheim 2050 wurden für die Stadtteile umfassende Aussagen zur Weiterentwicklung benannt. Für den Stadtteil Dillweißenstein gelten folgende Handlungsempfehlungen:
- Sanierung und Modernisierung der Gebäudesubstanz entlang der Hirsauer Straße
- Erhalt und Stärkung des Stadtteilzentrums
- Städtebauliche Entwicklung der ehemaligen Papierfrabrik zum Wohn- und Mischquartier als Impuls für den Stadtteil
Masterplan
"Pforzheim Zukunft Gestalten" – unter diesem Motto fand in den Jahren 2010 bis 2012 ein strategischer Stadtentwicklungsprozess statt. Das gemeinsam von Bürgerschaft, Gemeinderat und Verwaltung erarbeitete Ergebnis ist der Masterplan. Er dient als Kompass für die Entwicklung der Stadt in den kommenden 10 bis 15 Jahren. Umfasst werden dabei alle Lebensbereiche, für die der Masterplan Ziele mit unterschiedlicher Priorität vorgibt. Ihnen vorangestellt sind elf Leitsätze. Sie bilden zusammen die Vision für Pforzheim im Jahr 2025.
Klimaschutzkonzept
Das Klimaschutzkonzept gibt eine systematische Übersicht über Klimaschutzmaßnahmen in allen Handlungsfeldern und liefert neue langfristige Impulse für die weitere Reduktion von Energieverbrauch und CO2-Emissionen.
Initiativprogramm (IP) Wohnen
In das Sanierungsgebiet werden ebenfalls die Ergebnisse des IP Wohnen Eingang finden. Das IP Wohnen ist ein Wohnraumkonzept der Stadt Pforzheim, in dem auf Grundlage einer Analyse konkrete Vorschschläge für die Gesamtstadt und die einzelnen Quartiere erarbeitet werden.








