Zum Inhalt springen
  • Aufgelockerte Bewölkung: 25-50% 14 °C
  • Kontrast
  • Leichte Sprache

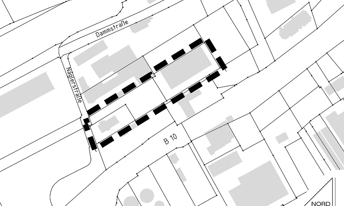
Bebauungsplan "Östlich der Naglerstraße, 1. Änderung"

Rechtskräftige Satzung

Satzungsnummer 756 

rechtskräftig seit 27.07.2018

Worum es geht:

Das Ziel des Bebauungsplanes ist die Ansiedlung eines Sozialkaufhauses.

Zeichnerischer Teil:

Textteil: